PREMIUM
na vyžádání

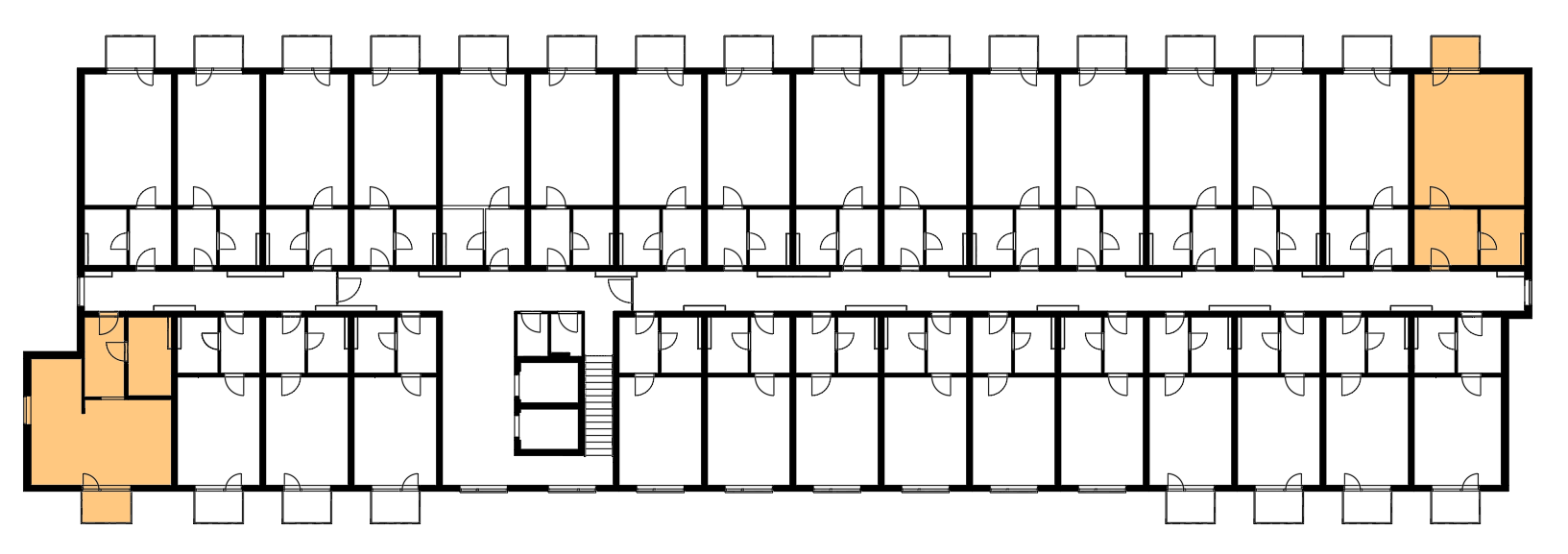
1+kk s balkonem

39,4 m2 až 40,2 m2

Nexuri péče
Velkoryse řešená jednotka 1+kk o výměře 39,4 až 40,2 m² s balkonem o velikosti 2,7 m². Díky větší ploše je vhodná i pro dlouhodobé bydlení nebo prémiový pronájem.
Interiér tvoří vstupní chodba se šatní skříní, moderní koupelna se sprchovým koutem a obývací pokoj s částečně vybaveným kuchyňským koutem a vstupem na balkon. Příjemné vnitřní klima zajišťuje rekuperace, okna s trojskly doplňují předokenní žaluzie. Samozřejmostí je systém Nexuri, přes který lze v aplikaci ovládat vstupní dveře, stínění i rekuperaci a zároveň sledovat spotřebu energií.
Energetická třída B přináší nízké provozní náklady. Ve společných prostorách je k dispozici komfortní lobby a chytré schránky. V domě je také možnost pronájmu garážového stání.
Cena na vyžádání
Velkoryse řešená jednotka 1+kk o výměře 39,4 až 40,2 m² s balkonem o velikosti 2,7 m². Díky větší ploše je vhodná i pro dlouhodobé užívání nebo prémiový pronájem.
Interiér tvoří vstupní chodba se šatní skříní, moderní koupelna se sprchovým koutem a obývací pokoj s částečně vybaveným kuchyňským koutem a vstupem na balkon. Příjemné vnitřní klima zajišťuje rekuperace, okna s trojskly doplňují předokenní žaluzie. Samozřejmostí je systém Nexuri, přes který lze v aplikaci ovládat vstupní dveře, stínění i rekuperaci a zároveň sledovat spotřebu energií.
Energetická třída B přináší nízké provozní náklady. Ve společných prostorách je k dispozici komfortní lobby a chytré schránky. V domě je také možnost pronájmu garážového stání.